Dom na sprzedaż, Zabłudów-Kolonia, surowy zamknięty, wolnostojący

Lokalizacjapodlaskie , Zabłudów-Kolonia
Cena559 000 PLN
Powierzchnia domu191 m2
Powierzchnia działki3012 m2
Ilość pokoi5
Liczba pięterparterowy
Garażtak
Wodawłasna
Stan technicznysurowy zamknięty
Rok budowy2011

.
W otoczeniu zielonych pól, w ciszy i spokoju z dala od ruchliwych dróg znajduje się  malowniczo położony dom wolnostojący. 
Zabłudów Kolonia to idealne miejsce do osiedlenia się na stałe dla osób ceniących sobie piękno  przyrody, ciszę i spokój.
Jednocześnie jest to miejsce z którego z możliwa jest szybka komunikacja do Zabłudowa, Hajnówki i Białegostoku.
.
Odległość mierzona do pokonania autem od budynku do ścisłego Centrum Białegostoku (ul. Suraska) to 25 km!
.
Nieruchomość to działka gruntu o powierzchni łącznej 3012 mkw. 
Dom na niej posadowiony jest wolnostojący bez podpiwniczenia, z poddaszem użytkowym, z garażem na dwa auta w bryle budynku.
Obszerny i wygodny o powierzchni użytkowej bez garażu 191 mkw (z garażem 224,44 m2) w stanie surowym zamkniętym.
.
TECHNOLOGIA:
Budynek na ławach fundamentowych betonowych o gr. 25 cm 
Ściany nadziemne z cegły (o gr. 25cm). 
Stropy żelbetowe, płytowe o grubości 15 cm
Schody żelbetowe z betonu
Dach wielospadowy pokryty dachówką ceramiczną
Stolarka okienna PCV

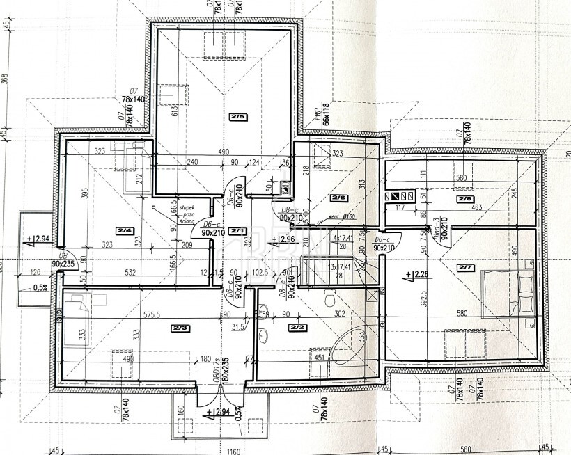
ROZKŁAD POMIESZCZEŃ:
PARTER (razem - 123,58 m2)
wiatrołap - 7,72 m2
hall - 13,98 m2
kuchnia ze spiżarnią - 18,33 m2
salon - 24,54 m2
pokój - 9,70 m2
łazienka - 5,05 m2
pom. gospodarcze - 2,83 m2
garaż - 33,35 m2
pom. gospodarcze - 4,20 m2
kotłownia - 3,86 m2

PODDASZE (powierzchnia 100,86 m2) 
4 pokoje (15,78 m2, 15,99 m2, 17,78 m2, 18,09 m2), hall ze schodami - 16,10 m2, łazienka - 8,81 m2, pralnia - 4,40 m2, garderoba - 6,01 m2

MEDIA:
prąd - przy działce
woda - studnia wiercona
kanalizacja - wg. projektu planowany zbiornik szczelny (V=9,5 m3)


OGRZEWANIE: wg. indywidualnego wyboru nabywcy.

POSESJA:  ogrodzona, dojazd drogą utwardzoną.

Wokół posesji: luźna zabudowa - nowe (powstałe w ostatnich latach) domy wolnostojące.
.
Na inne pytania chętnie odpowiemy telefonicznie
608 444 805 - zapraszamy do kontaktu i oglądania!
.
.
Podane dane mają charakter wyłącznie informacyjny i nie stanową oferty w rozumieniu Kodeksu Cywilnego oraz innych właściwych przepisów prawnych.